Through its Open Data initiative, Jersey City (New Jersey, United States) makes publicly available the plans and related files submitted by applicants for new building or renovation projects within its jurisdiction, from 2020 onward.
Best of all? access is free and fully legal.

This portal isn’t exclusive to the Planning Department and/or Public Works, but today I’ll show you how to filter and find what we care about: architectural plans.
- First, go to the following link:
https://data.jerseycitynj.gov/pages/home-page/
2. Once there, type Planning Board, and then Search.

You can also explore other areas of interest by selecting any of the categories above.
3. After applying the first filter, look for records labeled with this pattern:
PXX + YY + Address
Where:
• PXX = application year (e.g., P22 means the project was submitted in 2022)
• YYY = sequential ID assigned by the system based on submission order
Example: P22-175 123 Main Street
Let’s try this address:

Tip: Avoid applications containing the word “Extension,” as these usually refer to requests for extending an existing permit and include only legal forms (no plans or original documents). Instead, look for those labeled “Application,” since they correspond to the complete initial set of project documents.
4. Inside you will find the full submission set:

…but what really matters to us are the documents related to the architectural plans, so focus on files whose names include words associated with them.
- Plans
- Site plan
- Architecture
- Project
I this particular case it would be this file:

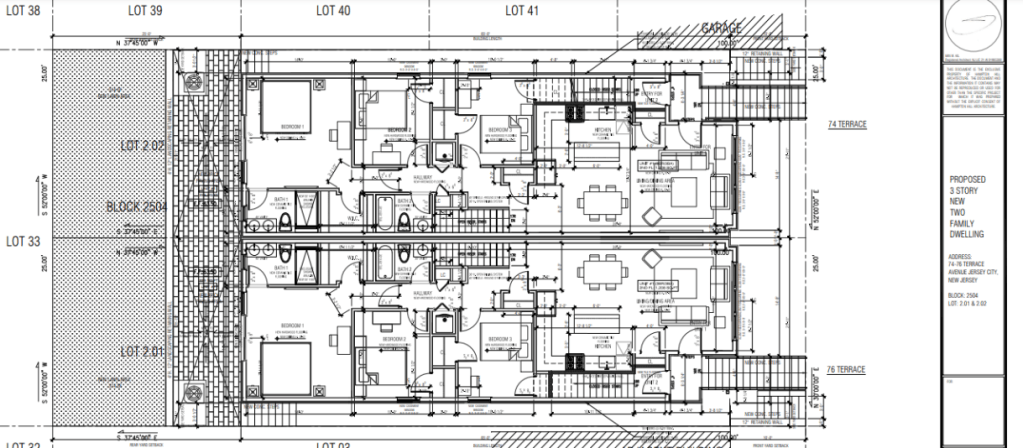
And voilà! You now have access to the architectural plans submitted by the owner to obtain permits from the Jersey City Planning Board. These plans are public and are typically reviewed by the Board during open hearings.

Now, keep in mind that these plans represent just the first step in obtaining final permits. Some are approved, others are rejected. After this stage, projects undergo further review by departments such as Zoning, JCMUA, and the Building Department. Still, the core design usually remains the same—so you can confidently use these plans as reference material.
What if you want to look up a specific project or a particular address?
Or maybe you’re just curious about what’s being developed around the city?
You’ll find plenty of projects—past and present—on this website:
https://jerseydigs.com/all-jersey-city-development-map/
Simply copy the address you’re interested in and paste it into the Jersey City Open Data search bar to locate it directly. It’s a more personalized (and often more exciting) way to explore.
There are dozens of projects across the city’s portfolio—so, bon appétit!
Thanks for reading, and good luck with your search!




Leave a comment